

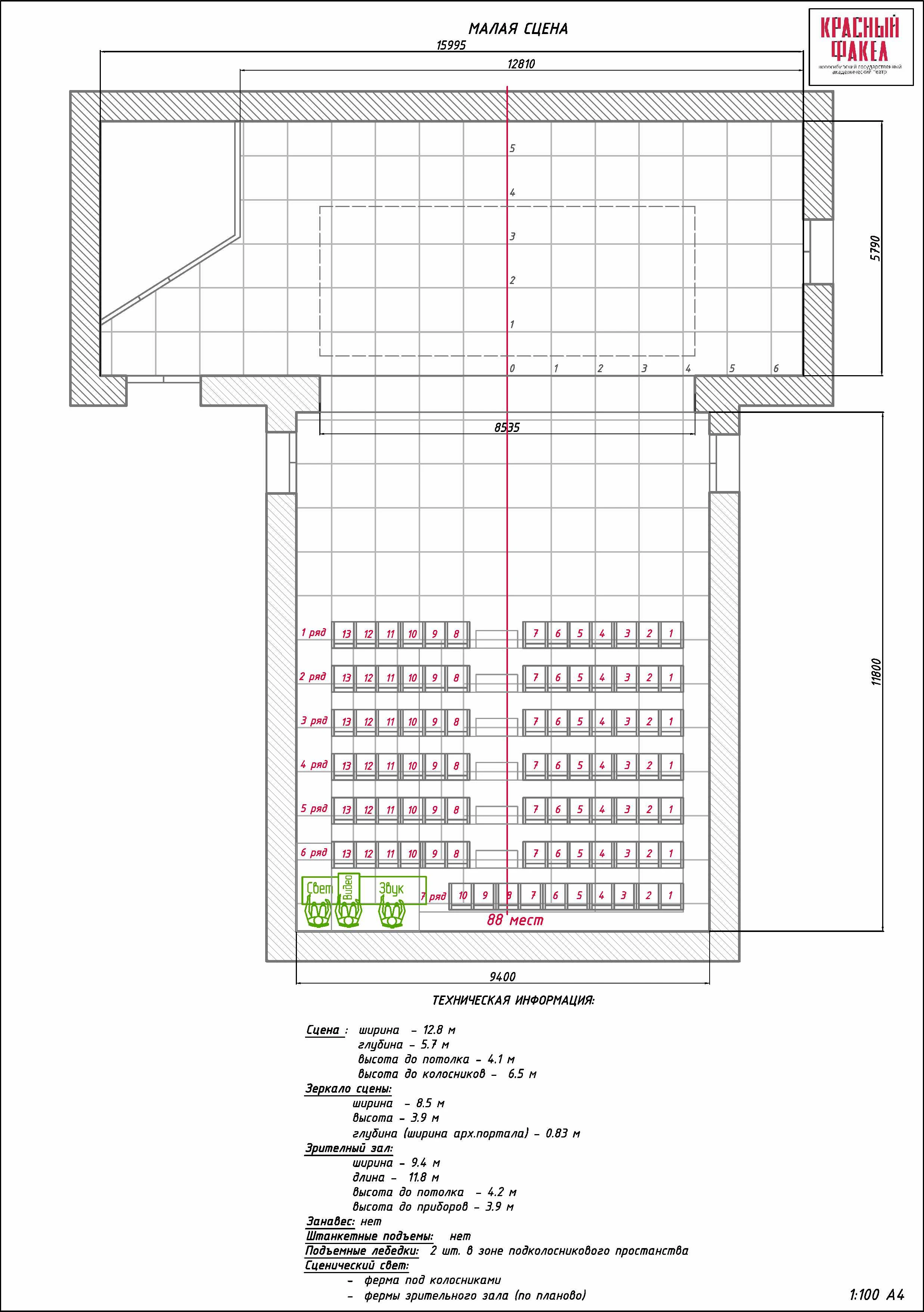
Ширина — 12,8 м
Глубина — 5,7 м
Высота — 4,1 м
Высота до колосников — 6,5 м
Наклон — 0°
Ширина — 8,5 м Высота — 3,9 м Ширина арх. портала — 0,83 м
Ширина — 9,4 м Длина — 11,8 м Высота до потолка — 4,2 м Высота до приборов — 3,9 м
88 мест
Чёрный
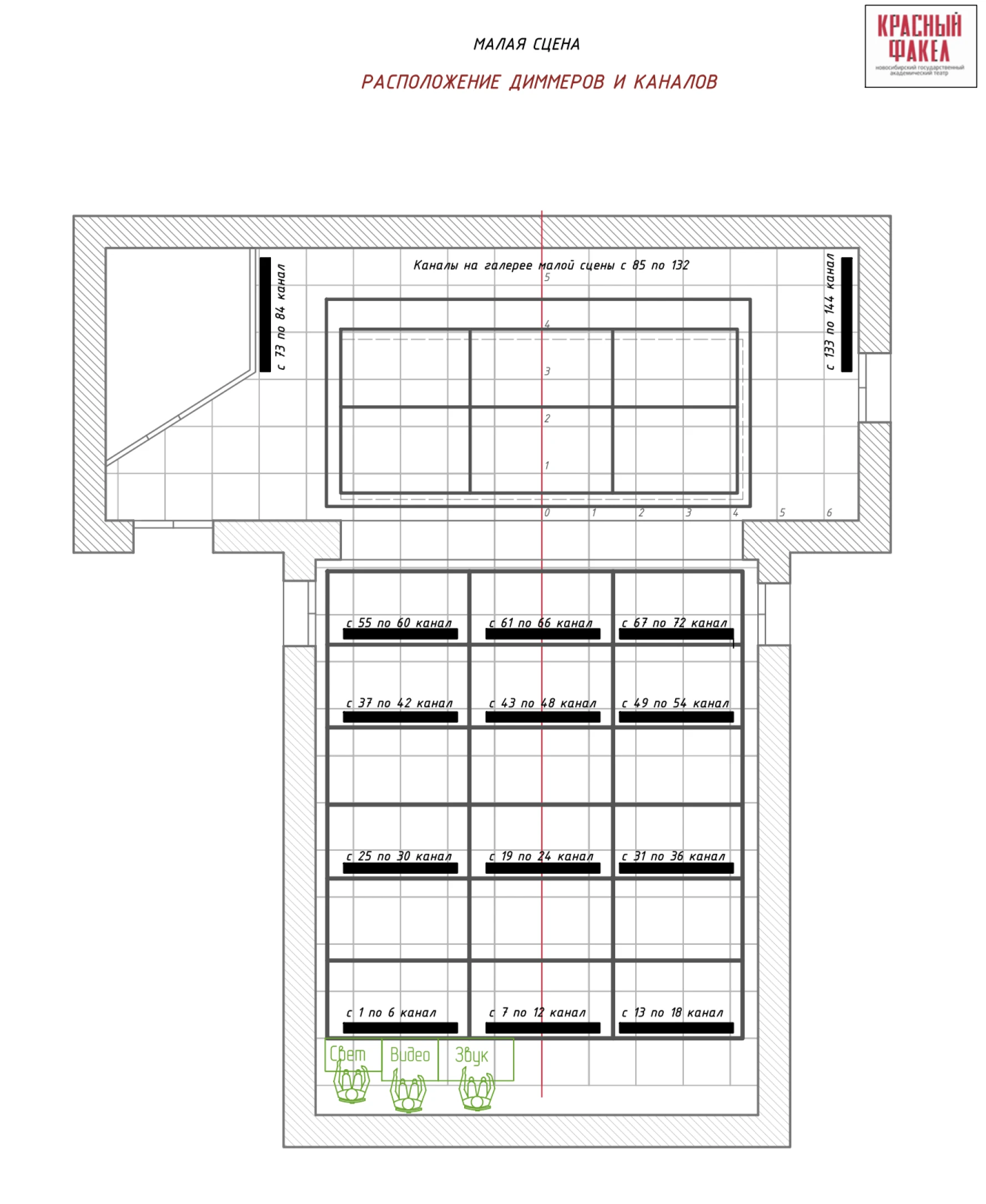
Нет
2 шт. в зоне колосникового пространства
Ферма под колосники, фермы зрительного зала (по планово), съёмные фермы зрительного зала
нет




На вашу электронную почту придет уведомление, когда билеты на этот спектакль появятся в продаже
630099, Новосибирск, ул. Ленина, 19